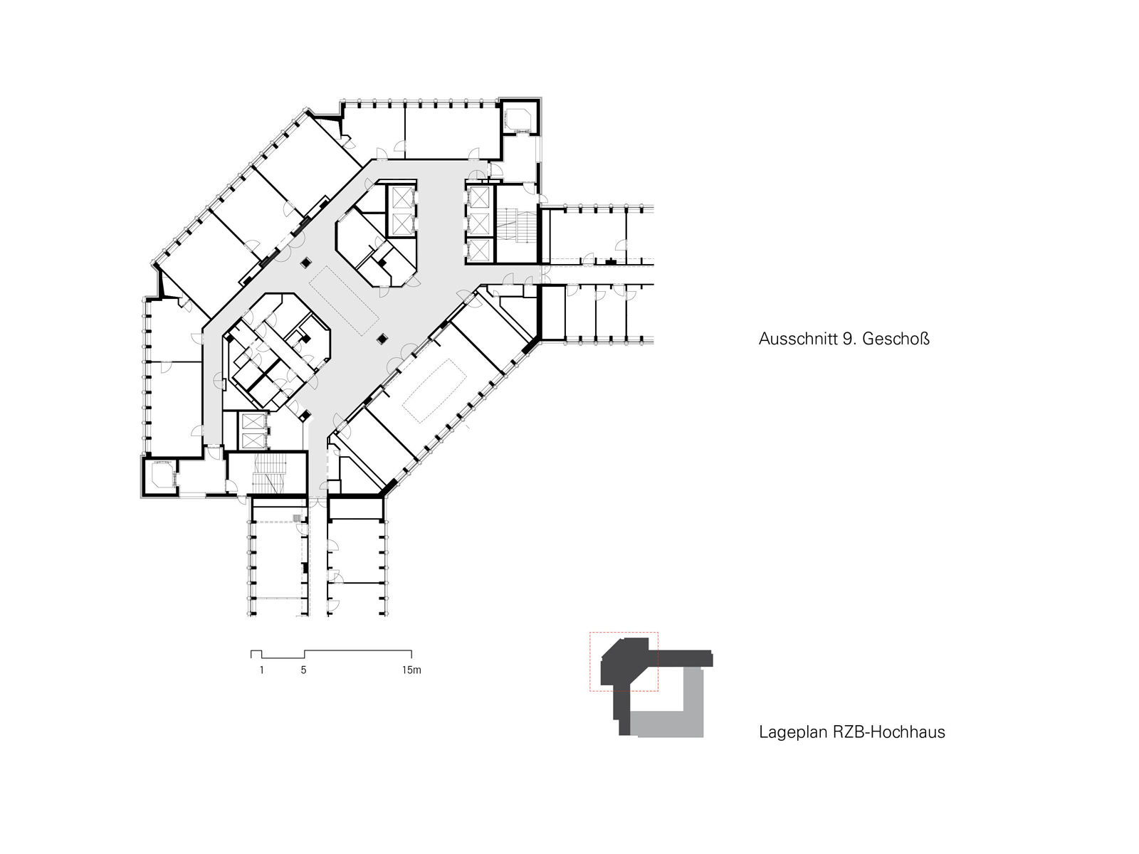
Umbau Vorstandsetage Raiffeisen Zentralbank
Wien
2011 – 2012
Zentrales Element der Erneuerung war die Blechkassettendecke, die mit ihren dreieckigen Elementen die drei Raumachsen des Gebäudes aufnimmt. Durch gelochte und ungelochte Paneele und den matten Glanz der Dreieckselemente entsteht ein leicht flirrender und dynamischer Charakter, der dem niedrigen Raum zusätzliche Höhe verleiht.
Über dem innenliegenden Empfangsbereich wurde in die Kassettendecke eine Glas- Element-Decke integriert. Sie ist mit Lichtleisten in Kalt- und Warmtönen bestückt und stufenlos dimmbar. So können im Verlauf des Tages unterschiedliche tageslichtartige Lichtstimmungen erzeugt werden.
Der Sitzungssaal wird dominiert vom großen Besprechungstisch aus europäischem Nussbaum. Zentral im Raum, analog zur Tischform, haben wir eine Lichtdecke geplant, die zwei verschiedene Lichtstimmungen erzeugen kann: Entweder leuchtet sie als Gesamtform und erhellt so den Raum oder es werden einzelne Lichtleisten eingeschaltet, die nur die darunterliegende Tischfläche ausleuchten und somit eine konzentriertere Stimmung erzeugen.
Die neuen Möbel aus europäischer Nuss, die Original-Marmorverkleidung der Lifte und die Bestandstüren aus Vogelaugenahorn bilden mit ihrer natürlichen Strukturierung einen schönen Gegensatz zum technischen Charakter der Decke.
Die Landschaftsfotografien von Gerd Hasler bilden eine eigene Ebene im Raum, die eine zusätzliche Weite schafft.
Leistungsphasen_LPH 1 - 8
Auftraggeberin_Raiffeisen Zentralbank
Fotokunst_Gerd Halser
Wandgestaltung Vorstands-Portraits_mit
lenz+ büro für visuelle gestaltung,
Gabriele Lenz und Elena Henrich
Fotos 1-6, 8-10_Pez Hejduk
weitere_Elena Henrich_muka
Wien
2011 – 2012
Zentrales Element der Erneuerung war die Blechkassettendecke, die mit ihren dreieckigen Elementen die drei Raumachsen des Gebäudes aufnimmt. Durch gelochte und ungelochte Paneele und den matten Glanz der Dreieckselemente entsteht ein leicht flirrender und dynamischer Charakter, der dem niedrigen Raum zusätzliche Höhe verleiht.
Über dem innenliegenden Empfangsbereich wurde in die Kassettendecke eine Glas- Element-Decke integriert. Sie ist mit Lichtleisten in Kalt- und Warmtönen bestückt und stufenlos dimmbar. So können im Verlauf des Tages unterschiedliche tageslichtartige Lichtstimmungen erzeugt werden.
Der Sitzungssaal wird dominiert vom großen Besprechungstisch aus europäischem Nussbaum. Zentral im Raum, analog zur Tischform, haben wir eine Lichtdecke geplant, die zwei verschiedene Lichtstimmungen erzeugen kann: Entweder leuchtet sie als Gesamtform und erhellt so den Raum oder es werden einzelne Lichtleisten eingeschaltet, die nur die darunterliegende Tischfläche ausleuchten und somit eine konzentriertere Stimmung erzeugen.
Die neuen Möbel aus europäischer Nuss, die Original-Marmorverkleidung der Lifte und die Bestandstüren aus Vogelaugenahorn bilden mit ihrer natürlichen Strukturierung einen schönen Gegensatz zum technischen Charakter der Decke.
Die Landschaftsfotografien von Gerd Hasler bilden eine eigene Ebene im Raum, die eine zusätzliche Weite schafft.
Leistungsphasen_LPH 1 - 8
Auftraggeberin_Raiffeisen Zentralbank
Fotokunst_Gerd Halser
Wandgestaltung Vorstands-Portraits_mit
lenz+ büro für visuelle gestaltung,
Gabriele Lenz und Elena Henrich
Fotos 1-6, 8-10_Pez Hejduk
weitere_Elena Henrich_muka














